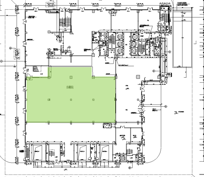
蘇州綠原城鄉建設有限公司擬對位于蘇州市姑蘇區人民路3158號萬融國際大廈102室進行公開競標招租(詳見招租位置示意圖),102室建筑面積約800㎡(具體區域招標以現場確認為準)
萬融國際大廈102室目招租位置示意圖:

| 店面號 | 建筑面積 | 樓層 | 經營業態 |
| 萬融國際大廈102室 | 約800㎡ | 一層 | 金融 |
一、報名條件:
1、具有經營相關業態經歷并提供相關證明材料,在蘇合法注冊的獨立法人資格的企業或個人;
2、企業:注冊資金不低于50萬元,注冊經營范圍內包含此次競標從事業態。財務和經營狀況良好,具備履行合同能力;
3、個人
1)人行征信報告
2)競標人提供身份證原件、復印件,在蘇居住證明(本市戶口本或臨時居住證)。
二、報名、現場勘查、答疑的方式和時間:
報名、現場勘查、答疑的地點:蘇州市姑蘇區人民路3158號萬融國際大廈B1物業服務中心; 咨詢電話:15250013779 王女士
蘇州綠原城鄉建設有限公司